Mieszkanie Kraśnik
Kraśnik, lubelskie
- 480 000 zł
- 63 m²
- 7 619,05 zł/m²
Bartlomije
Skontaktuj się
Mieszkanie Kraśnik
Kraśnik, lubelskie
zaktualizowane:
18 lutego 2026
Mieszkanie Kraśnik
Zaktualizowane: 18 lutego 2026
480 000 zł 63 m² 7 619,05 zł/m²
-
2
-
możliwość wykupienia
deweloperski
Piętro:
-Liczba pokoi:
2Rok budowy:
-Miejsce parkingowe:
możliwość wykupieniaStan mieszkania:
deweloperskiSzczegóły ogłoszenia
- Typ oferty: mieszkanie na sprzedaż
- Cena: 480 000 zł (7 619,05 zł/m²)
- Rynek: wtórny
- Dostępne: natychmiast
- Forma własności: własność
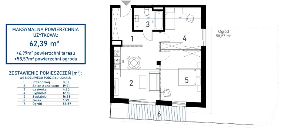
- Charakterystyka mieszkania: 63 m², 2 pokoje; stan: deweloperski
- instalacje: nowe / wymienione; okna: plastikowe
- Budynek: blok mieszkalny
- technika budowy: nowa technologia
- winda, dostosowany do osób niepełnosprawnych
- Rozkład mieszkania: piętro
- Powierzchnia dodatkowa: balkon, ogródek
- Świadectwo charakterystyki energetycznej: nie
- Bezpieczeństwo: drzwi antywłamaniowe, domofon/wideofon, monitoring/kamery, teren ogrodzony
- Miejsce parkingowe: możliwość wykupienia
- Źródło: ogłoszenie prywatne, zaktualizowane: 18.02.2026
Lokalizacja
- Adres: Kraśnik, kraśnicki, lubelskie
- Otoczenie: osiedle bloków mieszkalnych
- cicho (spokojna okolica)
Opis nieruchomości
Na sprzedaż nowoczesny apartament w stanie deweloperskim o powierzchni ok. 63 m² z prywatnym ogródkiem w Kraśniku.
To propozycja dla osób, które cenią przestrzeń, światło i możliwość stworzenia wnętrza idealnie dopasowanego do własnego stylu.
Przemyślany układ: 2 komfortowe sypialnie oraz przestronny salon z aneksem kuchennym tworzą harmonijną i funkcjonalną przestrzeń do życia. (...)
Bartlomije
695 772...
695 772 474

